Bútorozott lakás / téglalakás

  • Kód: #62008
  • Hely: Budapest , V.
  • Típus: lakás
  • Ár: 109 900 000 HUF
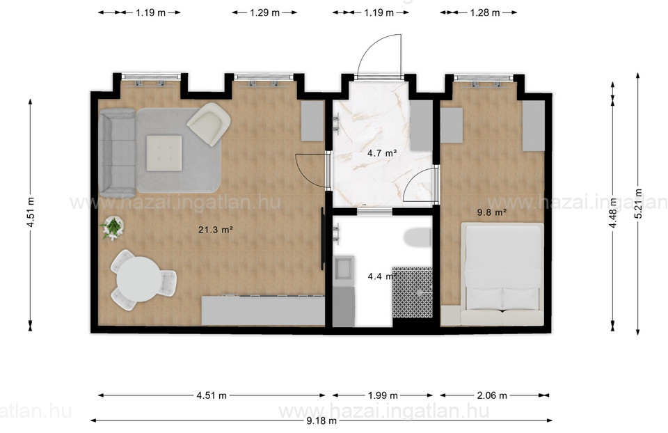
  • Méret: 39 m2
  • Szoba: 2
  • Állapot: extra állapotú
  • Komfort: összkomfortos
  • Fűtés: gázcirkó
  • Fürdő és wc: -
  • Lift: -
  • Erkély: -
  • Tájolás: -
  • Kilátás: udvarra néző
  • Parkolás: utcán fizetős
  • Belmagasság: -
  • Épület szint: 1
  • Emelet: 1
  • Légkondicionáló: Van
  • Panelprogram: -
.


Jogosultságok és terhek

✨ Eladó elegáns, belvárosi lakás – Váci utca, Budapest V. kerület ✨
A főváros szívében, Budapest ikonikus sétálóutcájában, a Váci utcában kínálunk megvételre egy különleges, 39 m²-es, nappali + hálós elosztású lakást, egy 1881-ben épült, patinás polgári házban.
A lakás déli tájolásának köszönhetően mindig világos, napfényes, a modern gázcirkó fűtés pedig biztosítja a kényelmes, takarékos mindennapokat.
Főbb adatok:
Alapterület: 39 m²
Szobák: nappali + háló
Építés éve: 1881 (téglaépület)
Fűtés: gázcirkó
Közös költség: 12.000 Ft/hó
Vízóra: van
Energetikai besorolás: folyamatban
Irányár: 117.000.000 Ft
Birtokba adás: a teljes vételár megfizetését követően azonnal
Lokáció – ahol minden egy karnyújtásnyira van
A Váci utca Budapest egyik legismertebb és legpezsgőbb része:
Kávézók, éttermek, divatüzletek és galériák sokasága
2 perc sétára a Duna-part és a Vámház körút
Kiváló közlekedés: M3 és M4 metró, villamosok, buszjáratok
Pár perc a Vörösmarty tértől és a Vásárcsarnoktól
Kinek ajánljuk?
Befektetőknek: rövid és hosszú távú kiadásra egyaránt ideális
Városi élet szerelmeseinek: minden itt van, ami a belvárosi élethez kell
Első lakásnak: könnyen fenntartható, remek elosztás
Ez a lakás a belvárosi ingatlanok között is ritkaság: történelmi környezet, modern komfort, elérhető luxus.
Ne hagyja ki – a Váci utca mindig biztos érték!
Megtekintés:
Előre egyeztetett időpontban lehetséges.

Amennyiben felkeltette érdeklődését, keressen bizalommal a nap bármely szakában – akár hétvégén is!



Vélemények a munkatársról

Kapcsolat felvétel

Wind ingatlan

Izik Barbara

Értékesítő

windingatlan5@gmail.com

+36-70-428-87-74

További ingatlanok

Részletek

Eladó

  • 80 m2
  • 3
  • 255 000 000 HUF
Részletek

Bútorozott

  • 121 m2
  • 3
  • 33 900 000 HUF
Részletek

Eladó

  • 58 m2
  • 2
  • 139 990 000 HUF
Részletek

Bútorozott

  • 89 m2
  • 3
  • 249 900 000 HUF